Home
Büro
Projekte
Alle
Wohnungsbau
Sonderbau/Gewerbebau
Innenarchitektur
Wettbewerbe
Leistungen
Kontakt
zurück zur Übersicht:
Innenarchitektur
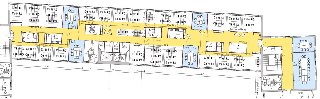
Büroplanung Green City München
Mieterplanung
weitere Projekte aus:
Innenarchitektur
Wohnungsbau
Sonderbau / Gewerbebau
Innenarchitektur
Wettbewerbe