Home
Büro
Projekte
Alle
Wohnungsbau
Sonderbau/Gewerbebau
Innenarchitektur
Wettbewerbe
Leistungen
Kontakt
zurück zur Übersicht:
Wettbewerbe
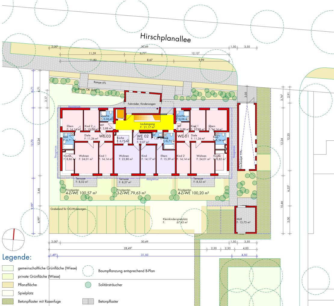
Plangutachten Mehrfamilienwohnanlage Oberschleißheim
weitere Projekte aus:
Wettbewerbe
Wohnungsbau
Sonderbau / Gewerbebau
Innenarchitektur
Wettbewerbe